Foto leveres af Google Street View og kan være upræcist:
Restaurant til leje, Århus C, Mejlgade 14
Mejlgade 14, 8000 Århus C- Restaurant til leje
- 327 m2
- 42.238 kr. per måned
Mejlgade 14, 8000 Århus C
- Restaurant til leje
- 327 m2
- 42.238 kr. per måned
FÅ MERE INFO OM LOKALET
Du linkes til en anden portal, som evt. kan kræve betaling eller oprettelse
Restaurant til leje, Århus C, Mejlgade 14
Remien Ejendomme
Thomas Padkjær
tlf: 42123400
Se email-adressexxxxxxxxxxxxxxxx
Gå til hjemmesidexxxxxxxxxxxxxxxxx
Thomas Padkjær
tlf: 42123400
Se email-adressexxxxxxxxxxxxxxxx
Gå til hjemmesidexxxxxxxxxxxxxxxxx
PRO-UDLEJER
Læs mereLæs om udlejer
Fakta
- 258482
- Restaurant
- 327 m2
- 506.850 kr.
- 42.238 kr.
- 1.550 kr.
FÅ MERE INFO OM LOKALET
Du linkes til en anden portal, som evt. kan kræve betaling eller oprettelse
Særdeles velbeliggende erhvervslokale – i det skønne og attraktive Latinerkvarter i Aarhus.
Særdeles velbeliggende erhvervslokale – i det skønne og attraktive Latinerkvarter i Aarhus.
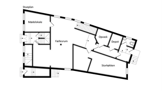
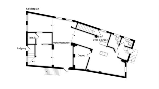
Dette lejemål er beliggende i Mejlgade, og har i en længere årrække været benyttet som café – hvilket det egner sig godt til. Lokalet er ca. 327 m2 og fordeler sig over to plan.
Det indeholder bl.a.:
- Restaurant/spiseareal på to forskellige etager – med mulighed for +50 spisende gæster
- Pænt køkken (i stueetagen), aflukket rum til opvask m.m.
- Mindre depotrum m.m.
- Mulighed for mødelokale/selskabslokale etc.
- Toiletfaciliteter på begge etager m.m.
- Mulighed for at leje areal i baggård; Til P-pladser eller
udeservering.
Der er indgang direkte fra Mejlgade, og lejemålet byder på en spændende og hyggelig indretning.
Lokalet er perfekt til café/restaurant eller lignende.
Dette lejemål er beliggende i Mejlgade, og har i en længere årrække været benyttet som café – hvilket det egner sig godt til. Lokalet er ca. 327 m2 og fordeler sig over to plan.
Det indeholder bl.a.:
- Restaurant/spiseareal på to forskellige etager – med mulighed for +50 spisende gæster
- Pænt køkken (i stueetagen), aflukket rum til opvask m.m.
- Mindre depotrum m.m.
- Mulighed for mødelokale/selskabslokale etc.
- Toiletfaciliteter på begge etager m.m.
- Mulighed for at leje areal i baggård; Til P-pladser eller
udeservering.
Der er indgang direkte fra Mejlgade, og lejemålet byder på en spændende og hyggelig indretning.
Lokalet er perfekt til café/restaurant eller lignende.
Information og data
Dette erhvervslokale ligger på Mejlgade i Århus C. Århus C har postnummeret 8000, og ligger i kommunen Aarhus, som ligger i Århus. Lokalet er i alt 327 m2. Lejepris: 506.850 kr. per år.