Foto leveres af Google Street View og kan være upræcist:
Lager til leje, Bjerringbro, Heimdalsvej 1
Heimdalsvej 1, 8850 Bjerringbro- Lager til leje
- 300 - 1.933 m2
Heimdalsvej 1, 8850 Bjerringbro
- Lager til leje
- 300 - 1.933 m2
FÅ MERE INFO OM LOKALET
Du linkes til en anden portal, som evt. kan kræve betaling eller oprettelse
Lager til leje, Bjerringbro, Heimdalsvej 1
Fakta
- 196645
- Lager
- 300 - 1.933 m2
FÅ MERE INFO OM LOKALET
Du linkes til en anden portal, som evt. kan kræve betaling eller oprettelse
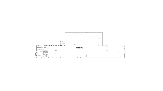
Butik, lager eller administration 1933 kvm - Lejemål 1
Centralt beliggende lager i Bjerringbro udlejes.
Mulighederne er mange da der både findes koldlager, isoleret lager, kontor muligheder eller måske administration med tilhørende lager for håndværkeren.
Der er mulighed for at leje helt op til 3.000 kvm.
Lejemål 1
Butik, lager eller administration.
Tidligere STARK byggemarked butik.
Areal 1933 m2
Lager, butik og administration – sammenhængende
Tilkørsel til lager rundt om bygningen via port
Butik og administration med separat indgang.
Se mere på https://www.sunpark.nu/
Kontakt os endelig for yderlige information og fremvisning.
Mulighederne er mange da der både findes koldlager, isoleret lager, kontor muligheder eller måske administration med tilhørende lager for håndværkeren.
Der er mulighed for at leje helt op til 3.000 kvm.
Lejemål 1
Butik, lager eller administration.
Tidligere STARK byggemarked butik.
Areal 1933 m2
Lager, butik og administration – sammenhængende
Tilkørsel til lager rundt om bygningen via port
Butik og administration med separat indgang.
Se mere på https://www.sunpark.nu/
Kontakt os endelig for yderlige information og fremvisning.
Information og data
Dette erhvervslokale ligger på Heimdalsvej i Bjerringbro. Bjerringbro har postnummeret 8850, og ligger i kommunen Viborg, som ligger i Region Midtjylland. Lokalet er i alt 1933 m2.