Foto leveres af Google Street View og kan være upræcist:
Lager til leje, Århus V, Paludan Müllers Vej 82-84
Paludan Müllers Vej 82-84, 8210 Århus V- Lager til leje
Paludan Müllers Vej 82-84, 8210 Århus V
- Lager til leje
Få mere info
Du linkes til en anden portal, som evt. kan kræve betaling eller oprettelse
Lager til leje, Århus V, Paludan Müllers Vej 82-84
Paludan-Müllers Vej 82-84, 8200 Aarhus N
Området
Ejendommen har en yderst attraktiv beliggenhed midt imellem Aarhus C og Skejby. Lejere vil nyde godt af stor eksponering mod hovedvejene Paludan-Müllers Vej og ydre Ringvej hvor der dagligt passerer mere end 30.000 biler, hvilket sikrer synlighed og tilgængelighed. Desuden er ejendommen i nærheden af IT-byen Katrinebjerg, som huser en række førende IT-virksomheder samt Journalisthøjskolen og Aarhus Universitet. Skejby Business Park, det største erhvervsområde uden for Aarhus C, ligger også inden for kort afstand. Motorvej Aarhus Syd og E45 er blot 6 min. i bil fra ejendommen.
Ejendommens placering sikrer hurtig adgang til det overordnede vejnet i Aarhus, og der er gode busforbindelser med bus 2A og 6A, hvoraf sidstnævnte har stoppested lige ved siden af ejendommen og afgange hvert tiende minut.
Ejendommen
Ejendommen er opført i 1999 som domicil til den danske fabrikant af vindmøller ”Vestas Wind Systems”. I dag huser ejendommen bl.a. Bygningsstyrelsen, Laros Ejendomsadministration og Min Bolig Handel.
Ejendommen er med sin langstrakte facade mod Ringgaden, udført i gule mursten og mørk hårdttræsbeklædning, en markant og kendt ejendom i Aarhus. Ejendommen er udformet med to sidefløje der udspringer fra et cirkulært indgangsparti og har fladt tag med tagudhæng udført i sort aluminium. Hele ejendommen fremstår udvendigt i nydelig og vel vedligeholdt stand.
Lejemålet
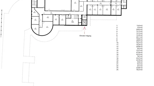
Lager indrettet i kælder med adgang fra elevator i grundplan. Lagerlejemål fremtræder i forskellige størrelser & kan fremvises efter aftale.
Karakterfuld ejendom i Aarhus med høj reklameværd
Ejendommen på Paludan-Müllers Vej 82 er en karakterfuld murstensejendom beliggende ved krydset mellem Ydre Ringgade og Paludan-Müllers Vej i Aarhus N. Ejendommen tilbyder forskellige kontorlejemål med fleksible størrelser i et bredt spænd. Med sin synlige beliggenhed og æstetisk tiltalende arkitektur tiltrækker ejendommen opmærksomhed fra Ringvejens mange forbikørende bilister. Den centrale placering gør den bekvem for virksomheder, der ønsker at etablere sig i Aarhus' forretningsmiljø. Ejendommen er velegnet til et bredt spektrum af virksomheder og tilbyder et professionelt miljø til at understøtte deres aktiviteter. Uanset om det er etablerede virksomheder eller startups, vil lejere finde lyse og rummelige kontorlokaler med mulighed for at tilpasse sig deres behov. Ejendommen repræsenterer en attraktiv mulighed for virksomheder, der søger et velplaceret kontorlejemål i Aarhus.
Ejendommen har en yderst attraktiv beliggenhed midt imellem Aarhus C og Skejby. Lejere vil nyde godt af stor eksponering mod hovedvejene Paludan-Müllers Vej og ydre Ringvej hvor der dagligt passerer mere end 30.000 biler, hvilket sikrer synlighed og tilgængelighed. Desuden er ejendommen i nærheden af IT-byen Katrinebjerg, som huser en række førende IT-virksomheder samt Journalisthøjskolen og Aarhus Universitet. Skejby Business Park, det største erhvervsområde uden for Aarhus C, ligger også inden for kort afstand. Motorvej Aarhus Syd og E45 er blot 6 min. i bil fra ejendommen.
Ejendommens placering sikrer hurtig adgang til det overordnede vejnet i Aarhus, og der er gode busforbindelser med bus 2A og 6A, hvoraf sidstnævnte har stoppested lige ved siden af ejendommen og afgange hvert tiende minut.
Ejendommen
Ejendommen er opført i 1999 som domicil til den danske fabrikant af vindmøller ”Vestas Wind Systems”. I dag huser ejendommen bl.a. Bygningsstyrelsen, Laros Ejendomsadministration og Min Bolig Handel.
Ejendommen er med sin langstrakte facade mod Ringgaden, udført i gule mursten og mørk hårdttræsbeklædning, en markant og kendt ejendom i Aarhus. Ejendommen er udformet med to sidefløje der udspringer fra et cirkulært indgangsparti og har fladt tag med tagudhæng udført i sort aluminium. Hele ejendommen fremstår udvendigt i nydelig og vel vedligeholdt stand.
Lejemålet
Lager indrettet i kælder med adgang fra elevator i grundplan. Lagerlejemål fremtræder i forskellige størrelser & kan fremvises efter aftale.
Karakterfuld ejendom i Aarhus med høj reklameværd
Ejendommen på Paludan-Müllers Vej 82 er en karakterfuld murstensejendom beliggende ved krydset mellem Ydre Ringgade og Paludan-Müllers Vej i Aarhus N. Ejendommen tilbyder forskellige kontorlejemål med fleksible størrelser i et bredt spænd. Med sin synlige beliggenhed og æstetisk tiltalende arkitektur tiltrækker ejendommen opmærksomhed fra Ringvejens mange forbikørende bilister. Den centrale placering gør den bekvem for virksomheder, der ønsker at etablere sig i Aarhus' forretningsmiljø. Ejendommen er velegnet til et bredt spektrum af virksomheder og tilbyder et professionelt miljø til at understøtte deres aktiviteter. Uanset om det er etablerede virksomheder eller startups, vil lejere finde lyse og rummelige kontorlokaler med mulighed for at tilpasse sig deres behov. Ejendommen repræsenterer en attraktiv mulighed for virksomheder, der søger et velplaceret kontorlejemål i Aarhus.
Information og data
Dette erhvervslokale ligger på Paludan Müllers Vej i Århus V. Århus V har postnummeret 8210, og ligger i kommunen Aarhus, som ligger i Århus.