Foto leveres af Google Street View og kan være upræcist:
Kontor til leje, Tranbjerg J, Sletvej 2D
Sletvej 2D, 8310 Tranbjerg J- Kontor til leje
- 44 m2
Sletvej 2D, 8310 Tranbjerg J
- Kontor til leje
- 44 m2
FÅ MERE INFO OM LOKALET
Du linkes til en anden portal, som evt. kan kræve betaling eller oprettelse
Kontor til leje, Tranbjerg J, Sletvej 2D
Fakta
- 254261
- Kontor
- Kontorfællesskab
- Ja
- 44 m2
- Ikke angivet
- 250
- 100 Pladser
FÅ MERE INFO OM LOKALET
Du linkes til en anden portal, som evt. kan kræve betaling eller oprettelse
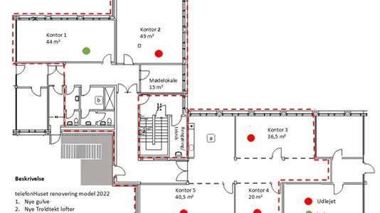
MÅNEDENS LEJEMÅL | 1. sal | Aarhus Syds største kontorfællesskab | Egen kantine | 250+ gratis P-pladser | 44 m²
🏢 MÅNEDENS LEJEMÅL
44 m² | 1–7 personer | Nyrenoveret afdeling | 10.900 kr. ekskl. moms pr. md. (alt inkl.) 💰
Et sjældent udbudt kontor bliver ledigt i Centralen – en af vores mest eftertragtede afdelinger i telefonHuset, Aarhus Syds største kontorfællesskab 🌿
✨ Dit nye kontor
Kontoret ligger på 1. sal med dejlig udsigt til grønne arealer og masser af dagslys – som du kan dæmpe efter behov med elektroniske udvendige markiser 🌞
Regulært rum på 44 m² – let at indrette
Faste vægge mod fællesarealet for ro og privatliv
Nye Troldtekt-akustiklofter med app-styret LED-lys – vælg selv lysstyrke og farvetemperatur 💡
Dør i den ene ende for fleksibel indretning
Lige ved siden af finder du mødelokale, og på den anden side kopirum og toilet/bad – alt inden for få skridt.
👥 Fællesskab og faciliteter
I afdelingen Centralen bor fire andre spændende virksomheder fra forskellige brancher som deler:
☕ Et stort, lyst thekøkken
🧼 Fælles badefaciliteter
🗓️ Mødelokaler og kantineadgang via naboafdelingen Omstillingen 2
📞 “Telefonbokse” til korte møder og fortrolige samtaler
💼 Alt er inkluderet i huslejen – ingen skjulte udgifter:
● Fri adgang til alle fællesområder i telefonHuset
● Vedligehold og service af vores faste serviceteam 🔧
● Bemandet kantine med frokostordning 🍽️
● 4 mødelokaler frit tilgængelige, hvis de ikke er booket
● Mulighed for at booke konferencefaciliteter online inkl. forplejning
● Lynhurtigt internet – 500/500 Mbit via trådløst eller LAN
● Egen alarmopkobling og brikstyring i kontoret 🔐
● Netværksaktiviteter med ½-årskalender
● GLS pakkerum med rabataftale 📦
● Fri parkering (250+ pladser) i aflukket, videoovervåget område 🚗
●Store grønne udearealer og 3.000 m² biodiversitetscirkler 🌸🐝
📍Beliggenhed i topklasse:
🛣️ 6 min. til motorvej
🚙10 min. til Aarhus C
🚌Bus lige til døren
Naboer som Troldtekt, Rodenstock Briller, Maxi Zoo, SUEZ Water og mange flere såvel små som mellemstore virksomheder
📃 Lejevilkår
● Fast pris alt inklusive 💰
● 3 måneders depositum
● Fleksibel 3 måneders løbende opsigelse
Bliv en del af et dynamisk kontorfællesskab med professionel atmosfære, stærkt netværk og personlig service – i Aarhus Syds mest attraktive erhvervshus.
👉 Kontakt os i dag og oplev, hvorfor telefonHuset er det naturlige valg for dig og din virksomhed!
📩 Bestil et prospekt i dag direkte på www.telefonHuset.dk
44 m² | 1–7 personer | Nyrenoveret afdeling | 10.900 kr. ekskl. moms pr. md. (alt inkl.) 💰
Et sjældent udbudt kontor bliver ledigt i Centralen – en af vores mest eftertragtede afdelinger i telefonHuset, Aarhus Syds største kontorfællesskab 🌿
✨ Dit nye kontor
Kontoret ligger på 1. sal med dejlig udsigt til grønne arealer og masser af dagslys – som du kan dæmpe efter behov med elektroniske udvendige markiser 🌞
Regulært rum på 44 m² – let at indrette
Faste vægge mod fællesarealet for ro og privatliv
Nye Troldtekt-akustiklofter med app-styret LED-lys – vælg selv lysstyrke og farvetemperatur 💡
Dør i den ene ende for fleksibel indretning
Lige ved siden af finder du mødelokale, og på den anden side kopirum og toilet/bad – alt inden for få skridt.
👥 Fællesskab og faciliteter
I afdelingen Centralen bor fire andre spændende virksomheder fra forskellige brancher som deler:
☕ Et stort, lyst thekøkken
🧼 Fælles badefaciliteter
🗓️ Mødelokaler og kantineadgang via naboafdelingen Omstillingen 2
📞 “Telefonbokse” til korte møder og fortrolige samtaler
💼 Alt er inkluderet i huslejen – ingen skjulte udgifter:
● Fri adgang til alle fællesområder i telefonHuset
● Vedligehold og service af vores faste serviceteam 🔧
● Bemandet kantine med frokostordning 🍽️
● 4 mødelokaler frit tilgængelige, hvis de ikke er booket
● Mulighed for at booke konferencefaciliteter online inkl. forplejning
● Lynhurtigt internet – 500/500 Mbit via trådløst eller LAN
● Egen alarmopkobling og brikstyring i kontoret 🔐
● Netværksaktiviteter med ½-årskalender
● GLS pakkerum med rabataftale 📦
● Fri parkering (250+ pladser) i aflukket, videoovervåget område 🚗
●Store grønne udearealer og 3.000 m² biodiversitetscirkler 🌸🐝
📍Beliggenhed i topklasse:
🛣️ 6 min. til motorvej
🚙10 min. til Aarhus C
🚌Bus lige til døren
Naboer som Troldtekt, Rodenstock Briller, Maxi Zoo, SUEZ Water og mange flere såvel små som mellemstore virksomheder
📃 Lejevilkår
● Fast pris alt inklusive 💰
● 3 måneders depositum
● Fleksibel 3 måneders løbende opsigelse
Bliv en del af et dynamisk kontorfællesskab med professionel atmosfære, stærkt netværk og personlig service – i Aarhus Syds mest attraktive erhvervshus.
👉 Kontakt os i dag og oplev, hvorfor telefonHuset er det naturlige valg for dig og din virksomhed!
📩 Bestil et prospekt i dag direkte på www.telefonHuset.dk
Services:
Adresseservice, Bredbånd, Catering, Eget firmaskilt ved hoveddør, Filserver adgang, Kantine, Konferencefaciliteter, Kopimaskine, Køkken/frokoststue, Lagerplads, Madordning, Møblering, Parkeringspladser, Printer, Receptionist, Rengøring
Information og data
Dette erhvervslokale, som også kan anvendes til Kontorfællesskab ligger på Sletvej i Tranbjerg J. Tranbjerg J har postnummeret 8310, og ligger i kommunen Aarhus, som ligger i Århus. Lokalet er i alt 44 m2. Der medfølger 250 parkeringspladser til ejendommen.