Foto leveres af Google Street View og kan være upræcist:
Kontor til leje, Ringsted, Jernbanevej 1
Jernbanevej 1, 4100 Ringsted- Kontor til leje
Jernbanevej 1, 4100 Ringsted
- Kontor til leje
Kontakt udlejeren nu
Du linkes til en anden portal, som evt. kan kræve betaling eller oprettelse
Kontor til leje, Ringsted, Jernbanevej 1
Voxeværket ApS
Henrik Oxe
tlf: 70707041
Se email-adressexxxxxxxxxxxxxxxx
Gå til hjemmesidexxxxxxxxxxxxxxxxx
Henrik Oxe
tlf: 70707041
Se email-adressexxxxxxxxxxxxxxxx
Gå til hjemmesidexxxxxxxxxxxxxxxxx
Læs om udlejer
Fakta
- 196188
- Kontor
- Ikke angivet
- Ikke angivet
KONTAKT UDLEJEREN NU
Du linkes til en anden portal, som evt. kan kræve betaling eller oprettelse
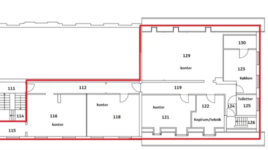
Kontorlokaler i Ringsted
Voxeværket har åbnet kontorhotel på Ringsted Station. Det er vores mindste kontorhotel med 5 lukkede kontorer.
Vi har lejet en del af 1.salen i stationsbygningen, så mangler du et lille kontorlokale i Ringsted, er Voxeværket Ringsted muligheden for jer.
Kontorerne er i forskellige størrelser, så uanset om du er alene eller om I er flere, så kan vi matche de fleste kontorforespørgsler.
Der er dagligt cirka 7.100 rejsende til- og fra Ringsted Station. Så du vil opleve masser liv. Derudover er busterminalen tæt på stationen der binder midtby samt butikscenteret godt sammen.
Derudover er der også gode parkeringsmuligheder.
Vi har lejet en del af 1.salen i stationsbygningen, så mangler du et lille kontorlokale i Ringsted, er Voxeværket Ringsted muligheden for jer.
Kontorerne er i forskellige størrelser, så uanset om du er alene eller om I er flere, så kan vi matche de fleste kontorforespørgsler.
Der er dagligt cirka 7.100 rejsende til- og fra Ringsted Station. Så du vil opleve masser liv. Derudover er busterminalen tæt på stationen der binder midtby samt butikscenteret godt sammen.
Derudover er der også gode parkeringsmuligheder.
Information og data
Dette erhvervslokale ligger på Jernbanevej i Ringsted. Ringsted har postnummeret 4100, og ligger i kommunen Ringsted, som ligger på Region Sjælland.