Foto leveres af Google Street View og kan være upræcist:

Kontor til leje, Odense SV, Hvidkærvej 48

Hvidkærvej 48, 5250 Odense SV
  • Kontor til leje
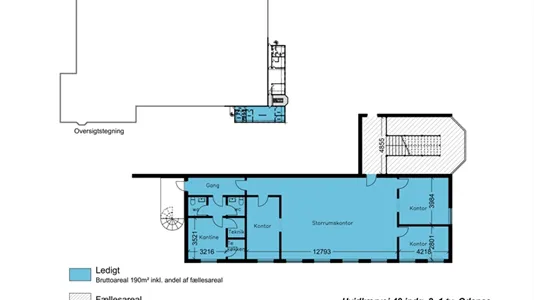
  • 190 m2
  • 10.292 kr. per måned
Kontor til leje, Odense SV, Hvidkærvej 48
Hvidkærvej 48, 5250 Odense SV
  • Kontor til leje
  • 190 m2
  • 10.292 kr. per måned
FÅ MERE INFO OM LOKALET
Du linkes til en anden portal, som evt. kan kræve betaling eller oprettelse

Kontor til leje, Odense SV, Hvidkærvej 48

Heimstaden Erhverv
Morten A.
tlf: 21756610
Se email-adressexxxxxxxxxxxxxxxx

Læs om udlejer

Fakta

  • 265989
  • Kontor
  • 190 m2
  • 123.500 kr.
  • 10.292 kr.
  • 650 kr.
FÅ MERE INFO OM LOKALET
Du linkes til en anden portal, som evt. kan kræve betaling eller oprettelse

Kontor til leje i 5250 Odense SV

Lejemålet er beliggende tæt på motorvej E20 - afkørsel 50, i veludbyttet erhvervsområde, med gode tilkørselsforhold. Der er gode parkeringsforhold på ejendommen. Pæne og velindrettede kontorlokaler, med attraktiv beliggenhed tæt på motorvejen. Lokalerne er placeret i ejendommens bagerste del, så de er meget ugenerte. Lejemålet vil være anvendeligt for alle typer kontor såsom salgskontor mv. med behov for hurtig adgang til motorvej mv. Lejemålet er indrettet med åbent kontorlandskab og 3 separate kontorer. Derudover gode personale faciliteter, i form at køkken med spiseplads og pæne toiletforhold.