Foto leveres af Google Street View og kan være upræcist:

Kontor til leje, Odense SØ, Emil Neckelmanns Vej 15 G

Emil Neckelmanns Vej 15 G, 5220 Odense SØ
  • Kontor til leje
  • 124 m2
  • 8.525 kr. per måned
Kontor til leje, Odense SØ, Emil Neckelmanns Vej 15 G
Emil Neckelmanns Vej 15 G, 5220 Odense SØ
  • Kontor til leje
  • 124 m2
  • 8.525 kr. per måned
FÅ MERE INFO OM LOKALET
Du linkes til en anden portal, som evt. kan kræve betaling eller oprettelse

Kontor til leje, Odense SØ, Emil Neckelmanns Vej 15 G

Heimstaden Erhverv
Morten A.
tlf: 21756610
Se email-adressexxxxxxxxxxxxxxxx

Læs om udlejer

Fakta

  • 281583
  • Kontor
  • 124 m2
  • 102.300 kr.
  • 8.525 kr.
  • 825 kr.
FÅ MERE INFO OM LOKALET
Du linkes til en anden portal, som evt. kan kræve betaling eller oprettelse

Kontor til leje i 5220 Odense SØ

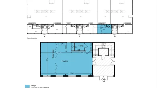
Lejemålet ligger på Emil Neckelmanns Vej 15G i den sydøstlige del af Odense, tæt på det fynske motorvejsnet. Lejemålet andrager 124 m² og fremstår fint og nydeligt. Lejemålet entreres via et præsentabelt fælles indgangsparti med højt til loftet og store vinduespartier. Lejemålet består af et åbent kontorrum samt et stort møderum med foldevæg. Derudover er der et mindre tekøkken og et toilet. Planløsningen er rummelig og fleksibel, og passer til mange typer virksomheders behov. Ejendommens udenomsarealer er udlagt til parkering til rådighed for ejendommens brugere.