Foto leveres af Google Street View og kan være upræcist:

Kontor til leje, Odense SØ, Emil Neckelmanns Vej 15 H

Emil Neckelmanns Vej 15 H, 5220 Odense SØ
  • Kontor til leje
  • 248 m2
  • 17.050 kr. per måned
Kontor til leje, Odense SØ, Emil Neckelmanns Vej 15 H
Emil Neckelmanns Vej 15 H, 5220 Odense SØ
  • Kontor til leje
  • 248 m2
  • 17.050 kr. per måned
FÅ MERE INFO OM LOKALET
Du linkes til en anden portal, som evt. kan kræve betaling eller oprettelse

Kontor til leje, Odense SØ, Emil Neckelmanns Vej 15 H

Heimstaden Erhverv
Morten A.
tlf: 21756610
Se email-adressexxxxxxxxxxxxxxxx

Læs om udlejer

Fakta

  • 279861
  • Kontor
  • 248 m2
  • 204.600 kr.
  • 17.050 kr.
  • 825 kr.
FÅ MERE INFO OM LOKALET
Du linkes til en anden portal, som evt. kan kræve betaling eller oprettelse

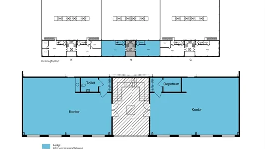
Kontor til leje i 5220 Odense SØ

Lejemålet : Lyst 1.sals godt kontorlejemål på 248 m² , beliggende i præsentabel flerbrugerejendom opført i 2009. Lejemålet er indrettet med flot indgangsparti, to åbne kontormiljøer, mindre te-køkken samt toiletsektion. Lyddæmpende lofter med indbygget fin grundbelysning. Lokalerne fremtræder pæne og velholdte og er indflytningsklare. Der er desuden gode parkeringsforhold på ejendommen.