Foto leveres af Google Street View og kan være upræcist:

Kontor til leje, Odense SØ, Emil Neckelmanns Vej 15

Emil Neckelmanns Vej 15, 5220 Odense SØ
  • Kontor til leje
  • 498 m2
  • 34.238 kr. per måned
Kontor til leje, Odense SØ, Emil Neckelmanns Vej 15
Emil Neckelmanns Vej 15, 5220 Odense SØ
  • Kontor til leje
  • 498 m2
  • 34.238 kr. per måned
FÅ MERE INFO OM LOKALET
Du linkes til en anden portal, som evt. kan kræve betaling eller oprettelse

Kontor til leje, Odense SØ, Emil Neckelmanns Vej 15

Heimstaden Erhverv
Morten A.
tlf: 21756610
Se email-adressexxxxxxxxxxxxxxxx

Læs om udlejer

Fakta

  • 265995
  • Kontor
  • 498 m2
  • 410.850 kr.
  • 34.238 kr.
  • 825 kr.
FÅ MERE INFO OM LOKALET
Du linkes til en anden portal, som evt. kan kræve betaling eller oprettelse

Kontor til leje i 5220 Odense SØ

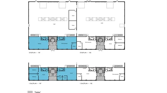
Lejemålet: Lejemålet ligger på Emil Neckelmanns Vej 15F i den sydøstlige del af Odense, tæt på det fynske motorvejsnet. Lejemålet andrager samlet 496 m² fordelt på fire kontorsektioner. Hvert kontor er indrettet med åbent kontorlandskab og et eller flere kontorer/mødelokaler. Derudover er der et mindre tekøkken og et toilet m. bad. Qua opdelingen kunne man med fordel lave et kantineafsnit i den ene sektion, på samme vis som tidligere lejer. Lejemålet entreres via et præsentabelt indgangsparti med højt til loftet og store vinduespartier. Fra entreen er der adgang til hver af de fire sektioner. Planløsningen er rummelig og fleksibel, og passer til mange typer virksomheders behov. Ejendommens udenomsarealer er udlagt til parkering til rådighed for ejendommens brugere.