Foto leveres af Google Street View og kan være upræcist:

Kontor til leje, Kolding, Vej ikke angivet

Vej ikke angivet, 6000 Kolding
  • Kontor til leje
  • 360 m2
  • 30.000 kr. per måned
Kontor til leje, Kolding, Vej ikke angivet
Vej ikke angivet, 6000 Kolding
  • Kontor til leje
  • 360 m2
  • 30.000 kr. per måned
Få mere info
Du linkes til en anden portal, som evt. kan kræve betaling eller oprettelse

Kontor til leje, Kolding, Vej ikke angivet

Copenhagen Real Estate
Susanne Skouenborg
tlf: +45 30 20 45 07
Se email-adressexxxxxxxxxxxxxxxx

PRO-UDLEJER

Læs mere

Læs om udlejer

Fakta

  • 310394
  • Kontor
  • 1.8.2026
  • 360 m2
  • 360.000 kr.
  • 30.000 kr.
  • 1.000 kr.

Lyst og indbydende kontor med nordisk æstetisk og unikke detaljer

Lyst og indbydende kontor med nordisk æstetik og unikke detaljer


Unik atmosfære: Lyse lokaler med hvidmalede bjælker og et fantastisk naturligt lysindfald.
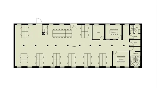
Gennemtænkt indretning: Kombination af stort åben kontorlandskab og eksklusive mødelokaler med glaspartier.
Socialt hjerte: Stort, moderne samtalekøkken med plads til fælles frokost og uformelle pauser.
Funktionalitet: Indeholder to toiletter, depotrum og gode garderobefaciliteter.
Ekstra kvadratmeter: Mulighed for at leje separate kælderlokaler til lager eller arkiv under særskilte vilkår.

På 1. sal i Olaf Ryes Gade 7N ligger dette erhvervslejemål, der skiller sig ud fra mængden. Lokalerne forener det rå, industrielle udtryk med en lys og moderne nordisk finish. De karakteristiske hvidmalede bjælker i loftet og de elegante glaspartier skaber et arbejdsmiljø, der føles både rummeligt og inspirerende.

Det store samtalekøkken fungerer som lejemålets naturlige samlingspunkt, hvor der er rig plads til både kaffepauser og det sociale fællesskab. Plantegningen sikrer et naturligt flow mellem det åbne kontormiljø og de separate møderum, hvilket skaber optimale betingelser for både samarbejde og fordybelse.

Anvendelse og Fleksibilitet: Lejemålet er ideelt til det kreative bureau, den rådgivende virksomhed eller tegnestuen, der søger en base med karakter centralt i Kolding. Skulle jeres virksomhed have behov for ekstra lagerkapacitet, er der mulighed for at tegne en separat lejekontrakt på de tilhørende kælderlokaler.

Vil du opleve mulighederne? Kontakt os for en fremvisning af dette unikke lejemål i Kolding. Vi glæder os til at vise jer rammerne for jeres næste arbejdsliv.

Parkering: Der er mulighed for at tilkøbe parkeringslicenser til parkering på adressen. Derudover er der 2 timers gratis parkering for gæster på adressen samt 24 timers gratis parkering på Thorbjergvej.

Lejemålet overtages umøbleret, hvilket giver jer den perfekte hvide profil til at implementere jeres egen visuelle identitet og indretning i de lyse rammer.

Depositum: null kr.

Information og data

Dette erhvervslokale ligger i Kolding. Kolding har postnummeret 6000, og ligger i kommunen Kolding, som ligger i Region Sydjylland. Lokalet er i alt 360 m2. Lejepris: 360.000 kr. per år.