Foto leveres af Google Street View og kan være upræcist:
Kontor til leje, København K, Arsenalet, Danneskiold-Samsøes Allé 28
Arsenalet, Danneskiold-Samsøes Allé 28, 1000-1499 København K- Kontor til leje
- 400 - 800 m2
Arsenalet, Danneskiold-Samsøes Allé 28, 1000-1499 København K
- Kontor til leje
- 400 - 800 m2
Få mere info
Du linkes til en anden portal, som evt. kan kræve betaling eller oprettelse
Kontor til leje, København K, Arsenalet, Danneskiold-Samsøes Allé 28
Kontor til leje i 1434 København K
RESERVERET
I det kreative miljø på Holmen, blot 5 minutter gang fra Indre By, tilbydes 1. og 2. sal til kontor/showroom i flot nyrenoveret ejendom på "Arsenalet" Danneskiold-Samsøes Allé 28. Bygningen, der engang var "folkebygning" for forsvaret, er konverteret til lyse erhvervslokaler i grønne omgivelser. Lejemålet udlejes efter renovering og hvor ejendommen energioptimeres og ejendommens parterre åbnes op imod Danneskiold-Samsøes Allé med en glasfacade og åben terrasse.
Området
"Arsenalet" er beliggende i starten af Holmen, nærmere bestemt på Arsenaløen, og er omgivet af charmerende kanaler og grønne områder med kort afstand til Kongens Nytorv og Christianshavn metrostation. Holmen er med sine mange historiske ejendomme og maritime miljø en populær oase for kreative virksomheder. Holmen består af flere områder. Naboen "Kuglegården" har gennemgået en totalrenovering, og to nye ejendomme er kommet til. Den sidste er stadig under opførelse. Frederiksholm, umiddelbart nord for Arsenaløen, består primært af boligbyggeri. Christiansholm/Papirøen imod Inderhavnen udvikles i disse år som et stort projekt med kulturelle tilbud, boliger og erhverv. I 2023 stod den nye grønne operapark med underjordisk parkeringsanlæg klar. Holmen er meget let tilgængelig via Inderhavnsbroen til Nyhavn, og via Danneskiold-Samsøes Allé til Christianshavn eller Kgs. Nytorv, hvor metrostationerne kan nås på en 10 minutters gåtur. Desuden går bussen lige til døren, og p-pladser kan tillejes på området.
Ejendommen
Lejemålet befinder sig i en af forsvarets tidligere områder. Lejemålet har facade ud mod Danneskiold-Samsøes Allé og blev opført i 1959 i gedigne materiale til brug for forsvarets mange aktiviteter på Holmen. Efter overdragelse til civil brug, har ejendommen tjent forskellige formål, senest blandt andet som kreativ tegnestue og kontor for et arkitektfirma. Naboer til ejendommen er bl.a. lokalt grønt sportsanlæg og designvirksomhederne i Kuglegården.
Lejemålet
Lejemålet står over for en renovering og åbning af parterre samt tilføjelse af en udvendig elevator.
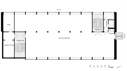
Lejemålet henvender sig til virksomheder, der ønsker en enestående placering midt i København i en sjælden udbudt ejendom. Det er egnet til kontor/showroom. Ejendommens parterre og stueetage er udlejet. 1. og 2. sal er fortsat ledige. De kan lejes hver for sig (398 m² og 402 m²) eller samlet 800 m².
1. sal (398 m²) og 2. sal (402 m²) er indrettet med åbne kontormiljøer og aflukkede møderum. Her er udsigt til Kuglegården, Operaen og områdets skønne grønne områder.
Nyt liv i Forsvarets gamle rammer
I slutningen af 1600-tallet blev flådens base flyttet fra Bremerholm til Christiansholm, og anlæggelsen af Arsenaløen blev påbegyndt. Det var den første af flere kunstige øer, som over de næste 300 år blev til det, vi i dag kender som Holmen.
"Arsenalet" på Holmen er en tidligere militærbygning opført i 1961 af Forsvarets Bygningstjeneste. Ejendommen er bygget i solide materialer og blev oprindeligt brugt til en bred vifte af forsvarets aktiviteter – herunder værksteder og kontorer. I slut 1990erne købte Byggeselskab Mogens de Linde Base Camp af staten, da flere af bygningerne på det dengang lukkede Holmen kom til salg. For lokale er bygningen kendt som "Base Camp" fra sin tid som restaurant og natklub i 1990'erne. Senest har bygningen været træningscenter.
Området med Arsenalet, Arsenalsøen, Kuglegården, Dokøen, Grønlandske Plads og Papirøen har i de seneste år og stadig været igennem en større omdannelse og infrastrukturen er forbedret. Et af de markante historiske bygningsværker på Holmen, er Kuglegården – tidligere kendt som Søarsenalet. Kuglegården har gennemgået en massiv renovering, der er tilføjet 2 nye bygninger til området ”Transgravshusene” og ”Proviantgården” – begge føjer sig naturligt ind i Holmens historiske arkitektur og maritime atmosfære. De kommende år står Arsenalet foran en ny transformation. Med respekt for historien og i tråd med visionerne for Kuglegården renoverer og udbygger vi ejendommen, så den bliver et naturligt supplement til områdets levende byrum. Holmen, engang et lukket militærområde, er i dag et dynamisk kvarter med boliger, erhverv, kreative uddannelsesinstitutioner og designvirksomheder. Et sted, hvor historie og nutid mødes – og hvor fremtiden skabes.
Arsenalet bevares i sin oprindelige struktur, men får et helt nyt udtryk. Vi tilføjer kælder, bygger to ekstra etager med moderne boliger og etablerer et elevatortårn, der sikrer tilgængelighed på tværs af bygningen. Samtidig energioptimeres ejendommen, så den lever op til nutidens krav til bæredygtighed og komfort.Når ejendommen står færdigrenoveret, er der plads til ældreaktivitetscenter, dagligvare, træning, butikker, kaffebar og boliger på toppen af det hele.
I det kreative miljø på Holmen, blot 5 minutter gang fra Indre By, tilbydes 1. og 2. sal til kontor/showroom i flot nyrenoveret ejendom på "Arsenalet" Danneskiold-Samsøes Allé 28. Bygningen, der engang var "folkebygning" for forsvaret, er konverteret til lyse erhvervslokaler i grønne omgivelser. Lejemålet udlejes efter renovering og hvor ejendommen energioptimeres og ejendommens parterre åbnes op imod Danneskiold-Samsøes Allé med en glasfacade og åben terrasse.
Området
"Arsenalet" er beliggende i starten af Holmen, nærmere bestemt på Arsenaløen, og er omgivet af charmerende kanaler og grønne områder med kort afstand til Kongens Nytorv og Christianshavn metrostation. Holmen er med sine mange historiske ejendomme og maritime miljø en populær oase for kreative virksomheder. Holmen består af flere områder. Naboen "Kuglegården" har gennemgået en totalrenovering, og to nye ejendomme er kommet til. Den sidste er stadig under opførelse. Frederiksholm, umiddelbart nord for Arsenaløen, består primært af boligbyggeri. Christiansholm/Papirøen imod Inderhavnen udvikles i disse år som et stort projekt med kulturelle tilbud, boliger og erhverv. I 2023 stod den nye grønne operapark med underjordisk parkeringsanlæg klar. Holmen er meget let tilgængelig via Inderhavnsbroen til Nyhavn, og via Danneskiold-Samsøes Allé til Christianshavn eller Kgs. Nytorv, hvor metrostationerne kan nås på en 10 minutters gåtur. Desuden går bussen lige til døren, og p-pladser kan tillejes på området.
Ejendommen
Lejemålet befinder sig i en af forsvarets tidligere områder. Lejemålet har facade ud mod Danneskiold-Samsøes Allé og blev opført i 1959 i gedigne materiale til brug for forsvarets mange aktiviteter på Holmen. Efter overdragelse til civil brug, har ejendommen tjent forskellige formål, senest blandt andet som kreativ tegnestue og kontor for et arkitektfirma. Naboer til ejendommen er bl.a. lokalt grønt sportsanlæg og designvirksomhederne i Kuglegården.
Lejemålet
Lejemålet står over for en renovering og åbning af parterre samt tilføjelse af en udvendig elevator.
Lejemålet henvender sig til virksomheder, der ønsker en enestående placering midt i København i en sjælden udbudt ejendom. Det er egnet til kontor/showroom. Ejendommens parterre og stueetage er udlejet. 1. og 2. sal er fortsat ledige. De kan lejes hver for sig (398 m² og 402 m²) eller samlet 800 m².
1. sal (398 m²) og 2. sal (402 m²) er indrettet med åbne kontormiljøer og aflukkede møderum. Her er udsigt til Kuglegården, Operaen og områdets skønne grønne områder.
Nyt liv i Forsvarets gamle rammer
I slutningen af 1600-tallet blev flådens base flyttet fra Bremerholm til Christiansholm, og anlæggelsen af Arsenaløen blev påbegyndt. Det var den første af flere kunstige øer, som over de næste 300 år blev til det, vi i dag kender som Holmen.
"Arsenalet" på Holmen er en tidligere militærbygning opført i 1961 af Forsvarets Bygningstjeneste. Ejendommen er bygget i solide materialer og blev oprindeligt brugt til en bred vifte af forsvarets aktiviteter – herunder værksteder og kontorer. I slut 1990erne købte Byggeselskab Mogens de Linde Base Camp af staten, da flere af bygningerne på det dengang lukkede Holmen kom til salg. For lokale er bygningen kendt som "Base Camp" fra sin tid som restaurant og natklub i 1990'erne. Senest har bygningen været træningscenter.
Området med Arsenalet, Arsenalsøen, Kuglegården, Dokøen, Grønlandske Plads og Papirøen har i de seneste år og stadig været igennem en større omdannelse og infrastrukturen er forbedret. Et af de markante historiske bygningsværker på Holmen, er Kuglegården – tidligere kendt som Søarsenalet. Kuglegården har gennemgået en massiv renovering, der er tilføjet 2 nye bygninger til området ”Transgravshusene” og ”Proviantgården” – begge føjer sig naturligt ind i Holmens historiske arkitektur og maritime atmosfære. De kommende år står Arsenalet foran en ny transformation. Med respekt for historien og i tråd med visionerne for Kuglegården renoverer og udbygger vi ejendommen, så den bliver et naturligt supplement til områdets levende byrum. Holmen, engang et lukket militærområde, er i dag et dynamisk kvarter med boliger, erhverv, kreative uddannelsesinstitutioner og designvirksomheder. Et sted, hvor historie og nutid mødes – og hvor fremtiden skabes.
Arsenalet bevares i sin oprindelige struktur, men får et helt nyt udtryk. Vi tilføjer kælder, bygger to ekstra etager med moderne boliger og etablerer et elevatortårn, der sikrer tilgængelighed på tværs af bygningen. Samtidig energioptimeres ejendommen, så den lever op til nutidens krav til bæredygtighed og komfort.Når ejendommen står færdigrenoveret, er der plads til ældreaktivitetscenter, dagligvare, træning, butikker, kaffebar og boliger på toppen af det hele.
Information og data
Dette erhvervslokale, som også kan anvendes til Showroom eller Klinik, ligger på Arsenalet, Danneskiold-Samsøes Allé i København K. København K har postnummeret 1434, og ligger i kommunen København, som ligger i København. Lokalet er i alt 800 m2.