Foto leveres af Google Street View og kan være upræcist:
Kontor til leje, Hvidovre, Avedøreholmen
Avedøreholmen, 2650 Hvidovre- Kontor til leje
- 144 m2
Avedøreholmen, 2650 Hvidovre
- Kontor til leje
- 144 m2
Kontakt udlejeren nu
Du linkes til en anden portal, som evt. kan kræve betaling eller oprettelse
Kontor til leje, Hvidovre, Avedøreholmen
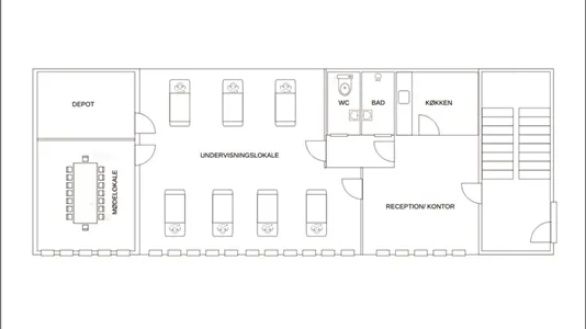
Kontor, showroom og undervisningslokale
Dette erhvervslejemål, som kan anvendes til Undervisning, ligger i Avedøreholme i Hvidovre.
Lejemålet er beliggende på 1. sal og der er adgang via trappen.
Optimalt til virksomheder der tilbyder kurser i massage eller lignende, ved interesse kan da inkludereres 7 massage brikse til rådighed. I alt indeholder dette lejemål:
Entre/ reception, køkken, toilet og bad, stort åbent lokale, ekstra stor møderum/ kontor og depotrum.
Lejemålet er beliggende på 1. sal og der er adgang via trappen.
Optimalt til virksomheder der tilbyder kurser i massage eller lignende, ved interesse kan da inkludereres 7 massage brikse til rådighed. I alt indeholder dette lejemål:
Entre/ reception, køkken, toilet og bad, stort åbent lokale, ekstra stor møderum/ kontor og depotrum.
Information og data
Dette erhvervslokale ligger på Avedøreholmen i Hvidovre. Hvidovre har postnummeret 2650, og ligger i kommunen Hvidovre, som ligger i Storkøbenhavn. Lokalet er i alt 144 m2. Der medfølger 6 parkeringspladser til ejendommen.