Foto leveres af Google Street View og kan være upræcist:
Kontor til leje, Århus C, Graven 23
Graven 23, 8000 Århus C- Kontor til leje
- 99 m2
Graven 23, 8000 Århus C
- Kontor til leje
- 99 m2
Få mere info
Du linkes til en anden portal, som evt. kan kræve betaling eller oprettelse
Kontor til leje, Århus C, Graven 23
Graven 23-25Karetmagergården
I Latinerkvarterets hyggelige handelsgader med specialbutikker, kaffebarer og caféer udbydes nu denne sjældne mulighed for at drive butik i Aarhus centrum. Det stilfulde kvarter er af mange kendt for sine charmerende, farverige bygninger og det pulserende shoppeliv. Med brostensbelagte, krogede og snoede gader, inviteres kunderne elegant indenfor til shopping og caféliv i de gamle, skæve byhuse. Allerede i 1800-tallet var kvarteret centrum for intensiv handel, men især i 1980’erne fik området en genoplivning, hvor restauratører og handlende opdagede charmen ved de snoede gader med den idylliske og smukke fremtoning.
Området
Graven er "åren" i Latinerkvarteret og forbinder de andre smalle stræder med hinanden. Den charmerende og travle handelsgade er omgivet af specialforretninger, butikker, caféer, kaffebarer og boligområde. Eksisterende nabobutikker til lejemålet udgør tøjbutikker samt omkringliggende kaffebarer, caféer og specialbutikker. Graven er let tilgængelig på cykel og til fods, ligesom bussen kører i gåafstand til og fra lejemålet ved Nørregade og Skovvejen. Desuden kan lejemålet også tilgås med bil i ensrettet gade i retning fra Mejlgade mod Klostergade.
Ejendommen
Karetmagergården, som har facade ud til Graven er opført i 1879 af karetmager C. Hansen. Efter Byggeselskab Mogens de Lindes overtagelse, har gården fået en gennemgribende renovering, således bygningerne er blevet moderniseret tilbage til den flotte originale stil. Fra facadebygningen kan man via et bredt portparti tilgå den pæne brostens belagte gårdsplads, som er omgivet af gulpudset bygninger. Midt i gårdspladsen står et smukt småblandet lindetræ.
Lejemålet
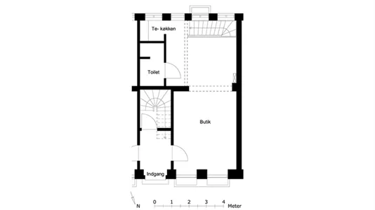
Lejemålet overtages istandsat og henvender sig til virksomheder, der ønsker en unik placering midt i Aarhus' nok mest charmerende handelsgade. Lejemålet er velegnet til butik og showroom, og består af to etager på i alt 99 m2. Stueetagen er indrettet med fælles indgangsparti, massive trægulve, mindre tekøkken og toilet med brus. Kælderen er opdelt i to rum, det ene oplagt til mindre lager.
Af hensyntagen til naboer og lugtgener kan ny lejer ikke forvente at producere eller sælge mad, krydderier og anden forarbejdelse med fødevarer, herunder pizza, fast food, sandwich, fisk, fødevarer, take away og andet mad.
Vi glæder os til at fremvise denne perle i Karetmagergården for jeres virksomhed efter forudgående aftale. Kontakt os gerne for nærmere information på tlf. 86 16 57 00 eller ring til udlejningschef Jacob Cailani Ladefoged på 28 69 25 65.
Fra karetværksted og stentrykkeri til lyse lokaler med historie og sjæl
Karetmagergården er en smuk og stemningsfuld bygning i Aarhus’ charmerende latinerkvarter, som de fleste i dag vil betragte som en vigtig del af både byhistorien og kulturarven. Men i mange år var det langtfra givet, at bygningen ville blive stående – og slet ikke at den skulle blive et eftertragtet lejemål. I dag er huset påskønnet af Aarhus Kommune for sin velholdte fremtræden, og bygningen indgår som en del af nutidens fortælling om latinerkvarteret og det historiske Aarhus.
Karetmagergården i centrum af Aarhus har adresse i Graven. Gaden løber fra Klostergade mod vest og ender i krydset med Mejlgade mod øst, og det er netop her i området, man finder de gamle, små og farverige huse med deres caféer, restauranter og specialbutikker, som til sammen danner Latinerkvarteret i Aarhus. Det er et af byens allermest eftertragtede og charmerende områder – men sådan har det ikke altid været.
Graven har sit navn fra de voldgrave, der helt fra vikingetiden beskytter byen mod nord. De tidligste kilder, der nævner bebyggelser i Graven, er fra midten af 1400-tallet, og det er også på den tid, at voldene bliver sløjfet, og Aarhus vokser mod nord. Men det er ikke store gårde eller huse, der bliver anlagt her; bebyggelsen i Graven består primært af små boder, som huser smedjer og slagterier, brændevinsbrænderier og koholderier. De huse, der ligger i gaden i dag, stammer primært fra 1800-tallet. Det gælder også Graven 23-25 fra 1873 – bygget som karetværksted – hvis port mod gaden har to små butikker på hver side med lejligheder ovenover, en brostensbelagt gård og et baghus, der tidligere blev brugt til industri.
Byggeselskab Mogens de Linde køber i starten af 1980’erne bygningen af to herrer, Jensen og Jensen, der indtil da, drev et trykkeri i baghuset. De lavede forskellige slags by- og vejkort, men efterhånden som den slags mere og mere blev lavet på computer, var der ikke længere en god forretning i at blive ved på den gammeldags facon, og stedets lange historie som trykkeri fik en ende. Det var også her i huset, at den helt unge Hans Hansen fra Lollandsgade 23, den yngste af en søskendeflok på 11, kom i lære som stentrykker. Allerede som 16-årig var han formand for lærlingeforeningen i Aarhus, og som 44-årig blev han Danmarks statsminister og bedre kendt som Hans Hedtoft.
Området
Graven er "åren" i Latinerkvarteret og forbinder de andre smalle stræder med hinanden. Den charmerende og travle handelsgade er omgivet af specialforretninger, butikker, caféer, kaffebarer og boligområde. Eksisterende nabobutikker til lejemålet udgør tøjbutikker samt omkringliggende kaffebarer, caféer og specialbutikker. Graven er let tilgængelig på cykel og til fods, ligesom bussen kører i gåafstand til og fra lejemålet ved Nørregade og Skovvejen. Desuden kan lejemålet også tilgås med bil i ensrettet gade i retning fra Mejlgade mod Klostergade.
Ejendommen
Karetmagergården, som har facade ud til Graven er opført i 1879 af karetmager C. Hansen. Efter Byggeselskab Mogens de Lindes overtagelse, har gården fået en gennemgribende renovering, således bygningerne er blevet moderniseret tilbage til den flotte originale stil. Fra facadebygningen kan man via et bredt portparti tilgå den pæne brostens belagte gårdsplads, som er omgivet af gulpudset bygninger. Midt i gårdspladsen står et smukt småblandet lindetræ.
Lejemålet
Lejemålet overtages istandsat og henvender sig til virksomheder, der ønsker en unik placering midt i Aarhus' nok mest charmerende handelsgade. Lejemålet er velegnet til butik og showroom, og består af to etager på i alt 99 m2. Stueetagen er indrettet med fælles indgangsparti, massive trægulve, mindre tekøkken og toilet med brus. Kælderen er opdelt i to rum, det ene oplagt til mindre lager.
Af hensyntagen til naboer og lugtgener kan ny lejer ikke forvente at producere eller sælge mad, krydderier og anden forarbejdelse med fødevarer, herunder pizza, fast food, sandwich, fisk, fødevarer, take away og andet mad.
Vi glæder os til at fremvise denne perle i Karetmagergården for jeres virksomhed efter forudgående aftale. Kontakt os gerne for nærmere information på tlf. 86 16 57 00 eller ring til udlejningschef Jacob Cailani Ladefoged på 28 69 25 65.
Fra karetværksted og stentrykkeri til lyse lokaler med historie og sjæl
Karetmagergården er en smuk og stemningsfuld bygning i Aarhus’ charmerende latinerkvarter, som de fleste i dag vil betragte som en vigtig del af både byhistorien og kulturarven. Men i mange år var det langtfra givet, at bygningen ville blive stående – og slet ikke at den skulle blive et eftertragtet lejemål. I dag er huset påskønnet af Aarhus Kommune for sin velholdte fremtræden, og bygningen indgår som en del af nutidens fortælling om latinerkvarteret og det historiske Aarhus.
Karetmagergården i centrum af Aarhus har adresse i Graven. Gaden løber fra Klostergade mod vest og ender i krydset med Mejlgade mod øst, og det er netop her i området, man finder de gamle, små og farverige huse med deres caféer, restauranter og specialbutikker, som til sammen danner Latinerkvarteret i Aarhus. Det er et af byens allermest eftertragtede og charmerende områder – men sådan har det ikke altid været.
Graven har sit navn fra de voldgrave, der helt fra vikingetiden beskytter byen mod nord. De tidligste kilder, der nævner bebyggelser i Graven, er fra midten af 1400-tallet, og det er også på den tid, at voldene bliver sløjfet, og Aarhus vokser mod nord. Men det er ikke store gårde eller huse, der bliver anlagt her; bebyggelsen i Graven består primært af små boder, som huser smedjer og slagterier, brændevinsbrænderier og koholderier. De huse, der ligger i gaden i dag, stammer primært fra 1800-tallet. Det gælder også Graven 23-25 fra 1873 – bygget som karetværksted – hvis port mod gaden har to små butikker på hver side med lejligheder ovenover, en brostensbelagt gård og et baghus, der tidligere blev brugt til industri.
Byggeselskab Mogens de Linde køber i starten af 1980’erne bygningen af to herrer, Jensen og Jensen, der indtil da, drev et trykkeri i baghuset. De lavede forskellige slags by- og vejkort, men efterhånden som den slags mere og mere blev lavet på computer, var der ikke længere en god forretning i at blive ved på den gammeldags facon, og stedets lange historie som trykkeri fik en ende. Det var også her i huset, at den helt unge Hans Hansen fra Lollandsgade 23, den yngste af en søskendeflok på 11, kom i lære som stentrykker. Allerede som 16-årig var han formand for lærlingeforeningen i Aarhus, og som 44-årig blev han Danmarks statsminister og bedre kendt som Hans Hedtoft.
Information og data
Dette erhvervslokale, som også kan anvendes til Butik eller Showroom, ligger på Graven i Århus C. Århus C har postnummeret 8000, og ligger i kommunen Aarhus, som ligger i Århus. Lokalet er i alt 99 m2.