Foto leveres af Google Street View og kan være upræcist:

Kontor til leje, Århus C, Sydhavnsgade

Sydhavnsgade, 8000 Århus C
  • Kontor til leje
  • 51 m2
Kontor til leje, Århus C, Sydhavnsgade
Sydhavnsgade, 8000 Århus C
  • Kontor til leje
  • 51 m2
Kontakt udlejeren nu
Du linkes til en anden portal, som evt. kan kræve betaling eller oprettelse

Kontor til leje, Århus C, Sydhavnsgade

Fakta

  • 300129
  • Kontor
  • 51 m2
  • Ikke angivet
  • 840 kr.

Unik mulighed for etablering af kunstnerværksted

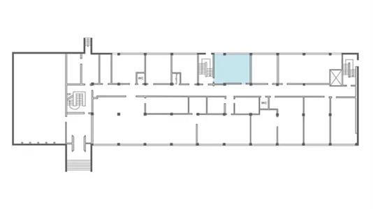
Sydhavnsgade 7 er super attraktiv placeret på Aarhus Havn tæt på midtbyen, Lystbådehavnen og lige ved udmundingen af indfaldsvejen til E45. Bag bygningens rå og industrielle facader gemmer sig et væld af anvendelsesmuligheder herunder kunstnerværksted, kontor eller lign. Lokalet er 51 m² og har adgang til fælles toiletter på etagen. Der er gode parkeringsforhold med mulighed for leje af parkeringspladser i gården og med gratis korttidsparkering ude foran ejendommen.

Information og data

Dette erhvervslokale ligger på Sydhavnsgade i Århus C. Århus C har postnummeret 8000, og ligger i kommunen Aarhus, som ligger i Århus. Lokalet er i alt 51 m2.


Dette er et søgeresultat. Klik dig videre til det eksterne website for at få mere info om lokalet.