Foto leveres af Google Street View og kan være upræcist:
Kontorfællesskab til leje, Kolding
6000 Kolding- Kontorfællesskab til leje
6000 Kolding
- Kontorfællesskab til leje
Få mere info
Du linkes til en anden portal, som evt. kan kræve betaling eller oprettelse
Kontorfællesskab til leje, Kolding
Ingen binding, kontor til 1.425 kr.
Kampagne: Angivet pris på 1.425 kr. er kampagnepris svarende til 50% rabat. Rabat er gældende de første 3 måneder. Herefter 2.850 kr. pr. måned.
Kampagnen gælder kun nye lejere i EasyOffice
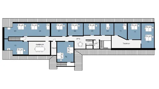
På Centervej 2A får du et kontorlokale til leje i Kolding med fleksible vilkår og rolige omgivelser. Her kombineres en fredelig beliggenhed med professionelle rammer, så du kan arbejde fokuseret uden at gå på kompromis med kvalitet.
Du får dit eget kontor i et mindre og professionelt miljø, hvor der er plads til både fordybelse og sparring i hverdagen. Det er en oplagt løsning for dig, der ønsker en stabil base i Kolding – men uden lange kontrakter eller tunge bindinger.
Centervej 2A adskiller sig fra traditionelle kontorbygninger. Her får du en hyggelig gård med en rolig atmosfære og et mere personligt arbejdsmiljø, hvor arbejdsdagen føles afslappet og indbydende. Det skaber en god balance mellem professionelle rammer og trivsel – noget mange virksomheder i dag vægter højt.
Lokalerne har fine, synlige bjælker, som giver rummene varme og karakter – ideelt for dig, der ønsker indbydende erhvervslokaler i Kolding
Ejendommen ligger tæt på grønne arealer og villaveje, hvilket giver en afslappet base i hverdagen. Her får du ro til at arbejde effektivt – uden at være langt fra byens faciliteter.
Her får du et velholdt erhvervslejemål i Kolding, der passer til konsulenter, mindre virksomheder og selvstændige.
Som en del af EasyOffice får du:
• Erhvervslejemål uden binding, og kort opsigelse
• Gennemsigtige vilkår
• Lyse, velholdte lokaler i flot stand
• Høj kvalitet til en konkurrencedygtig pris
Det gør dette kontorlokale på Centervej 2A i Kolding attraktivt, hvis du ønsker fleksibilitet og mulighed for at skalere din virksomhed.
Du får kontorlokale med parkering og der er gratis pladser lige ved indgangen – nemt for både medarbejdere og kunder. Det gør hverdagen mere enkel og sparer tid i en travl arbejdsuge.
Der er ca. 89 meter (1–2 minutters gang) til nærmeste busstoppested ved Bramdrupskovvej/Centervej. Kolding Station ligger ca. 4 km væk (typisk 8–10 minutters kørsel), hvilket giver god forbindelse til resten af Trekantområdet … og gør pendling realistisk, hvis du eller dine kunder kommer fra andre byer i området.
Book en fremvisning
Vil du opleve rammerne og stemningen selv?
Kontakt os i dag og book en uforpligtende fremvisning af kontorlokalet på Centervej
Se mere om vores andet kontorfællesskab i Kolding her
Depositum: 8550 kr.
Kampagnen gælder kun nye lejere i EasyOffice
Lyse kontorlokaler på Centervej 2A i Kolding
På Centervej 2A får du et kontorlokale til leje i Kolding med fleksible vilkår og rolige omgivelser. Her kombineres en fredelig beliggenhed med professionelle rammer, så du kan arbejde fokuseret uden at gå på kompromis med kvalitet.
Du får dit eget kontor i et mindre og professionelt miljø, hvor der er plads til både fordybelse og sparring i hverdagen. Det er en oplagt løsning for dig, der ønsker en stabil base i Kolding – men uden lange kontrakter eller tunge bindinger.
Rolige omgivelser og hyggelig gårdatmosfære
Unikke omgivelser
Centervej 2A adskiller sig fra traditionelle kontorbygninger. Her får du en hyggelig gård med en rolig atmosfære og et mere personligt arbejdsmiljø, hvor arbejdsdagen føles afslappet og indbydende. Det skaber en god balance mellem professionelle rammer og trivsel – noget mange virksomheder i dag vægter højt.
Kontorlokaler med flotte detaljer
Lokalerne har fine, synlige bjælker, som giver rummene varme og karakter – ideelt for dig, der ønsker indbydende erhvervslokaler i Kolding
Fredelig beliggenhed tæt på grønne områder
Ejendommen ligger tæt på grønne arealer og villaveje, hvilket giver en afslappet base i hverdagen. Her får du ro til at arbejde effektivt – uden at være langt fra byens faciliteter.
Fleksibelt erhvervslejemål i Kolding – ingen binding og all inclusive
Her får du et velholdt erhvervslejemål i Kolding, der passer til konsulenter, mindre virksomheder og selvstændige.
Som en del af EasyOffice får du:
• Erhvervslejemål uden binding, og kort opsigelse
• Gennemsigtige vilkår
• Lyse, velholdte lokaler i flot stand
• Høj kvalitet til en konkurrencedygtig pris
Det gør dette kontorlokale på Centervej 2A i Kolding attraktivt, hvis du ønsker fleksibilitet og mulighed for at skalere din virksomhed.
Nem adgang, gratis parkering og transport
Kontorlokale med gratis parkering
Du får kontorlokale med parkering og der er gratis pladser lige ved indgangen – nemt for både medarbejdere og kunder. Det gør hverdagen mere enkel og sparer tid i en travl arbejdsuge.
Offentlig transport og station
Der er ca. 89 meter (1–2 minutters gang) til nærmeste busstoppested ved Bramdrupskovvej/Centervej. Kolding Station ligger ca. 4 km væk (typisk 8–10 minutters kørsel), hvilket giver god forbindelse til resten af Trekantområdet … og gør pendling realistisk, hvis du eller dine kunder kommer fra andre byer i området.
Book en fremvisning
Vil du opleve rammerne og stemningen selv?
Kontakt os i dag og book en uforpligtende fremvisning af kontorlokalet på Centervej
Se mere om vores andet kontorfællesskab i Kolding her
Depositum: 8550 kr.
Information og data
Dette erhvervslokale ligger i Kolding. Kolding har postnummeret 6000, og ligger i kommunen Kolding, som ligger i Region Sydjylland. Lokalet er i alt 1 m2.