Foto leveres af Google Street View og kan være upræcist:
Klinik til leje, Taastrup
2630 Taastrup- Klinik til leje
- 4.660 kr. per måned
2630 Taastrup
- Klinik til leje
- 4.660 kr. per måned
Få mere info
Du linkes til en anden portal, som evt. kan kræve betaling eller oprettelse
Klinik til leje, Taastrup
Momsfrit kliniklokale til 4.660 kr.
All inclusive: Hos Copenhagen Real Estate's klinikfællesskab, EasyClinic, har vi vores lejere i fokus. Vi sørger for alle detaljer, så du kan koncentrere dig om din praksis. I prisen er integreret internet, el, vand og varme samt rengøring af fællesarealerne.
Central beliggenhed: Vores klinikfællesskab er centralt beliggende, kun 2 minutters gang fra Taastrup Station, hvilket sikrer nem adgang for både behandlere og klienter. Der er ligeledes gode parkeringsforhold tilgængelige i nærområdet.
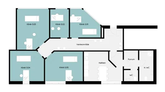
Professionel og indbydende atmosfære: Lokalerne er moderne indrettet for at skabe en professionel og imødekommende atmosfære, der understøtter din praksis og fremmer et positivt klientmøde. EasyClinic tilbyder nyrenoverede og indflytningsklare kliniklokaler i Taastrup. Hvert lokale er privat og aflåseligt og inkluderer adgang til fælles faciliteter såsom køkken, toiletfaciliteter og et komfortabelt møbleret venteværelse for dine klienter.
Fleksibel lejekontrakt: Vi tilbyder fleksible lejekontrakter, hvor du selv bestemmer tidshorisonten. Du kan tilpasse lejeperioden efter dine behov uden at være bundet af lange kontrakter.
Se mere om klinikfællesskabet her.
Depositum: 3 kr.
Central beliggenhed: Vores klinikfællesskab er centralt beliggende, kun 2 minutters gang fra Taastrup Station, hvilket sikrer nem adgang for både behandlere og klienter. Der er ligeledes gode parkeringsforhold tilgængelige i nærområdet.
Professionel og indbydende atmosfære: Lokalerne er moderne indrettet for at skabe en professionel og imødekommende atmosfære, der understøtter din praksis og fremmer et positivt klientmøde. EasyClinic tilbyder nyrenoverede og indflytningsklare kliniklokaler i Taastrup. Hvert lokale er privat og aflåseligt og inkluderer adgang til fælles faciliteter såsom køkken, toiletfaciliteter og et komfortabelt møbleret venteværelse for dine klienter.
Fleksibel lejekontrakt: Vi tilbyder fleksible lejekontrakter, hvor du selv bestemmer tidshorisonten. Du kan tilpasse lejeperioden efter dine behov uden at være bundet af lange kontrakter.
Se mere om klinikfællesskabet her.
Depositum: 3 kr.
Information og data
Dette erhvervslokale ligger i Taastrup. Taastrup har postnummeret 2630, og ligger i kommunen Høje Taastrup, som ligger i Storkøbenhavn. Lejepris: 55.920 kr. per år.