Foto leveres af Google Street View og kan være upræcist:
Klinik til leje, Odense C, Thorslundsvej 2
Thorslundsvej 2, 5000 Odense C- Klinik til leje
- 15 m2
Thorslundsvej 2, 5000 Odense C
- Klinik til leje
- 15 m2
FÅ MERE INFO OM LOKALET
Du linkes til en anden portal, som evt. kan kræve betaling eller oprettelse
Klinik til leje, Odense C, Thorslundsvej 2
Fakta
- 109271
- Klinik
- Kontor
- 15 m2
- Ikke angivet
- 100
- 30 Pladser
- 21
FÅ MERE INFO OM LOKALET
Du linkes til en anden portal, som evt. kan kræve betaling eller oprettelse
Bliv en del af Behandlercentrum i Odense med mulighed for adgang til 5500 m2 Sportscenter!
KOM TIL EN FREMVISNING AF KLINIKLOKALER OG FÆLLESFACILITETER I BEHANDLERCENTRUM!
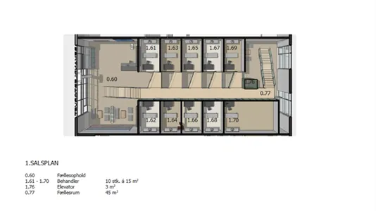
Behandlercentrum i Odense C er et klinikfællesskab bestående af 21 individuelle behandlerrum med tilhørende lækre fællesfaciliteter som eksempelvis; venteværelse, reception, mødelokaler, kantine, omklædningsrum, baderum, gratis parkering, wifi, alarm, elevator, vaskeri, depot m.m.
Vi tilbyder dig pr. 1. april 2023 muligheden for fællesskab og sparring med andre behandlere i et levende og aktivt miljø, der med Odense Sportscentrum som nærmeste nabo også giver muligheden for adgang til mange træningsfaciliteter og fitnessrum.
Odense Sportscentrum råder over 5500 m2 og udbyder 20 forskellige idrætsgrene, hvorfor området, med sine dagligt flere hundrede brugere, emmer af atmosfære, aktivitet og potentielle kunder.
Ring på tlf. 42 73 80 17 for en uforpligtende fremvisning af et behandlerrum med tilhørende fællesfaciliteter, eller skriv til kontakt@behandlercentrum.dk for fremsendelse af materiale og information omkring lejemål.
Pris for leje af et kliniklokale på fuld tid 1. år: kr. 4.000,-/md. + forbrug og fællesudgifter.
Depositum: 3 måneders leje.
Pris for leje af et møbleret kliniklokale for en enkelt dag fra kl. 08.00-18.00: kr. 499,-. (inkl. forbrug og fællesudg.)
Pris for 1 fast ugedag i et møbleret kliniklokale: kr. 1.550,-/md. (inkl. forbrug og fællesudg.)
Pris for 2 faste ugedage i et møbleret kliniklokale: kr. 3.000,-/md. (inkl. forbrug og fællesudg.)
Alle kliniklokaler i Behandlercentrum er lydisolerede, udstyret med ventilation, vask med berøringsfri vandhane, skuffer og skabe samt dæmpbar belysning.
Behandlercentrum i Odense C er et klinikfællesskab bestående af 21 individuelle behandlerrum med tilhørende lækre fællesfaciliteter som eksempelvis; venteværelse, reception, mødelokaler, kantine, omklædningsrum, baderum, gratis parkering, wifi, alarm, elevator, vaskeri, depot m.m.
Vi tilbyder dig pr. 1. april 2023 muligheden for fællesskab og sparring med andre behandlere i et levende og aktivt miljø, der med Odense Sportscentrum som nærmeste nabo også giver muligheden for adgang til mange træningsfaciliteter og fitnessrum.
Odense Sportscentrum råder over 5500 m2 og udbyder 20 forskellige idrætsgrene, hvorfor området, med sine dagligt flere hundrede brugere, emmer af atmosfære, aktivitet og potentielle kunder.
Ring på tlf. 42 73 80 17 for en uforpligtende fremvisning af et behandlerrum med tilhørende fællesfaciliteter, eller skriv til kontakt@behandlercentrum.dk for fremsendelse af materiale og information omkring lejemål.
Pris for leje af et kliniklokale på fuld tid 1. år: kr. 4.000,-/md. + forbrug og fællesudgifter.
Depositum: 3 måneders leje.
Pris for leje af et møbleret kliniklokale for en enkelt dag fra kl. 08.00-18.00: kr. 499,-. (inkl. forbrug og fællesudg.)
Pris for 1 fast ugedag i et møbleret kliniklokale: kr. 1.550,-/md. (inkl. forbrug og fællesudg.)
Pris for 2 faste ugedage i et møbleret kliniklokale: kr. 3.000,-/md. (inkl. forbrug og fællesudg.)
Alle kliniklokaler i Behandlercentrum er lydisolerede, udstyret med ventilation, vask med berøringsfri vandhane, skuffer og skabe samt dæmpbar belysning.
Information og data
Dette erhvervslokale ligger på Thorslundsvej i Odense C. Odense C har postnummeret 5000, og ligger i kommunen Odense, som ligger i Odense. Lokalet er i alt 15 m2. Der medfølger 100 parkeringspladser til ejendommen.