Foto leveres af Google Street View og kan være upræcist:

Erhvervslokaler til leje, Svendborg, Se vej-navn[xxxxxxxxxx]

Se vej-navn[xxxxxxxxxx], 5700 Svendborg
  • Erhvervslokaler til leje
Erhvervslokaler til leje, Svendborg, <span class="blurred street" onclick="ProcessAdRequest(310723)"><span class="hint">Se vej-navn</span>[xxxxxxxxxx]</span>
Se vej-navn[xxxxxxxxxx], 5700 Svendborg
  • Erhvervslokaler til leje
Få mere info
Du linkes til en anden portal, som evt. kan kræve betaling eller oprettelse

Erhvervslokaler til leje, Svendborg, Se vej-navn[xxxxxxxxxx]

Fakta

  • 310723
  • Erhvervslokaler
  • Ikke angivet
  • Ikke angivet

Erhvervslokaler til leje i 5700 Svendborg

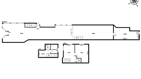
Gerritsgade 8, st., 5700 Svendborg (se på kort)Charmerende butikslejemål i hjertet af Svendborg.Beliggende på brostensbelagt del af Gerritsgade, hvor der også er kørende trafik, ca. 50 meter fra byens primære gågade.Lejemålet har en attraktivt beliggenhed tæt på en af byens bedste handelsgader.Lejen er ekslusiv moms.

Information og data

Dette erhvervslokale ligger på Gerritsgade i Svendborg. Svendborg har postnummeret 5700, og ligger i kommunen Svendborg, som ligger på Fyn.