Foto leveres af Google Street View og kan være upræcist:

Erhvervslokaler til leje, Århus C, Mejlgade

Mejlgade, 8000 Århus C
  • Erhvervslokaler til leje
  • 30 m2
Erhvervslokaler til leje, Århus C, Mejlgade
Mejlgade, 8000 Århus C
  • Erhvervslokaler til leje
  • 30 m2
Få mere info
Du linkes til en anden portal, som evt. kan kræve betaling eller oprettelse

Erhvervslokaler til leje, Århus C, Mejlgade

Fakta

  • 309208
  • Erhvervslokaler
  • 1.1.2026
  • 30 m2
  • Ikke angivet
  • 1.280 kr.

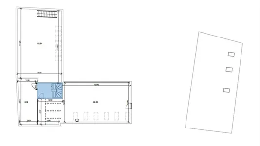
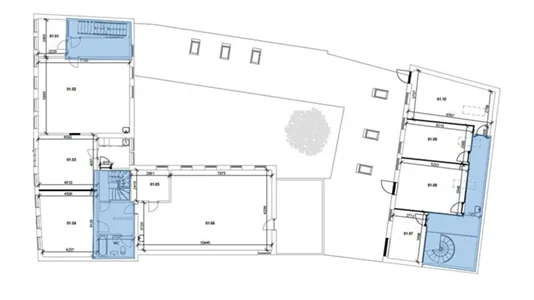
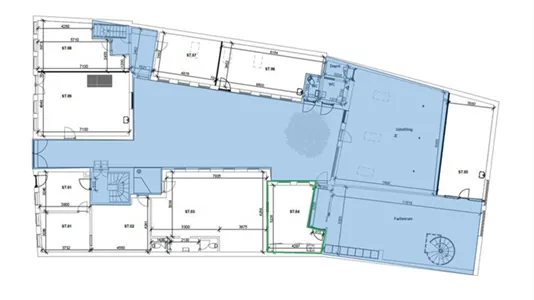
Mulighed for at etablere arbejdsmæssigt kunstnerkollektiv

Drømmer du – eller I – om et kreativt fællesskab med plads til fordybelse, samarbejde og kunstnerisk udvikling? Nu åbner der sig en enestående mulighed for at etablere et arbejdsmæssigt kunstnerkollektiv i den atmosfærefyldte ejendom på Mejlgade 32-34 – tidligere hjemsted for Det Jyske Kunstakademi. Beliggende midt i Aarhus' kulturelle puls, omgivet af hyggelige caféer, gallerier og et levende bymiljø, giver ejendommen både inspiration udefra og ro til kreativt arbejde indenfor. Her kan du forme dine egne rammer og lade kunsten blomstre. Lejemålene spænder fra 9-130 m² (brutto) med mulighed for enten at leje sit eget lokale eller som gruppe leje et større atelier/værksted. Som lejer får man andel i en samlet ejendom med adgang til: Fælles udstillingslokale Fælles køkken Fælles gårdrum Lejerne udarbejder i fællesskab husorden for fællesarealerne samt bestemmelser for brugen af udstillingslokalet, så alle får ligeværdig adgang og mulighed for at udfolde sig kunstnerisk. Lejepriserne starter fra 1.800 kr. pr. måned (ekskl. forbrug og internet). Ejendommen er ikke momsregistreret. Lejemålene udbydes med tidsubegrænsede kontrakter og overtages beset, så I kan istandsætte og indrette lokalerne efter egne behov. Som en attraktiv opstart tilbyder udlejer én måneds huslejefrihed ved indflytning pr. 01.01.2026. Ønsker du at blive en del af dette spændende kunstnerkollektiv kan du kontakte os på tlf. [xxxxx]eller e-mail: [xxxxx]

Information og data

Dette erhvervslokale ligger på Mejlgade i Århus C. Århus C har postnummeret 8000, og ligger i kommunen Aarhus, som ligger i Århus. Lokalet er i alt 30 m2.


Dette er et søgeresultat. Klik dig videre til det eksterne website for at få mere info om lokalet.